travauxcommuneappeldoffres.html
APPEL A CANDIDATURE
POUR
L'EXPLOITATON ET LA GESTION D 'UN RESTAURANT
SITUE A LONG 80510
1 – Identification : Commune de LONG – Représentée par Mr Francis LEPINE- Maire
Mairie de LONG , 5 Grande Rue , 80510 LONG
Tel : 03 22 31 80 21 - Fax : 03 22 31 82 39 – email : mairie.long@wanadoo.fr
2 - Objet de la consultation : Mise en place d'un bail commercial pour la gestion et l'exploitation d'un restaurant dénommé « Au Fil de L'eau » situé 3 Grande rue 80510 LONG .
3 - Durée du bail : six ans renouvelable par période de trois ans,les six premières années étant fermes.
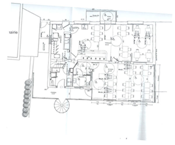
4 - Description du site : La capacité d'accueil en places assises est de 50 ( 28 en terrasse fermée avec vue panoramique et 22 en salle ).Les travaux de réhabilitation et de mise aux normes sanitaires, d'accès et d'exploitation ont été menés par la Commune , y compris l'équipement de la cuisine. Le restaurant est également doté d'un appartement type 3
5 - Dossier de consultation : Le dossier de consultation est disponible en Mairie et remis à titre gracieux. Possibilité de visiter les lieux sur rendez-vous
Horaires d'ouverture de la Mairie : du mardi au vendredi de 11h à 12 h et de 16h30 à 18h30.
Permanence des élus : le lundi et mercredi de 18h30 à 19h30 , le samedi de 11h à 12h
6 - Date limite de réception des projets : 21 Décembre 2011 à 16h
7 - Durée de validité de l'offre des candidats : 120 jours à compter de la date limite de remise des projets.
8 - Date d'envoi du présent avis à la publication : Mardi 15 Novembre 2011.



BRASSERIE ET SALLE COTE SOMME

Salle de la brasserie: 69 m2 (11.50 x 6 m) - terrasse : 45 m2 (9 m x 5 m) -cuisine: 12 m2 (3 m x 4m) - plonge: 7.50 m2 - wc : 12.25 m2 (3.50 m x 3.50 m)
Appel A Projets
Exploitation d'un Restaurant
A Long
Dénomination et Adresse de la Collectivité
Commune de Long
Représentée par Monsieur le Maire
Mairie de Long
5 Grande Rue
80510 Long
Tél : 0322318021 – Fax : 0322318239 - email : mairie.long@wanadoo.fr
Concept Attendu
La commune de Long est située au cœur de la vallée de Somme, entre Amiens et Abbeville, dans un secteur à vocations agricoles et touristiques.
La commune a su préserver un cadre authentique et naturel, en mettant en avant son patrimoine architectural et son patrimoine nature, axé sur l'eau. Depuis longtemps, Long organise la visite commentée de son patrimoine.
Les efforts de la commune ces trois dernières années ont permis d'inscrire Long dans ''le Grand Projet Vallée de Somme''. Ce projet est piloté par le département. Il favorise de nouveaux aménagements ayant pour objectif de développer une nouvelle dynamique de rayonnement et de promotion, afin de bénéficier de nouveaux flux touristiques. Ces flux seront générés en partie, par le fleuve et la «vélo route voie verte». Il pourra être proposé aux visiteurs une offre orientée sur l'art de vivre « Esprit de Picardie », de par la qualité des sites du territoire et de l'éco-loisirs.
La commune souhaite renforcer cette offre, en implantant un restaurant de bonne gamme, qui s'adresserait à un public en recherche d'une offre qualitative, dans un cadre à fort potentiel.
Pour atteindre cet objectif, Long a fait l'acquisition de l'ancienne brasserie '' Au Fil de l'Eau'', équipement situé au cœur du village mais aussi, en bordure de Somme et à proximité de la halte nautique, des sites touristiques et des départs et arrivées des randonnées pédestres.
La commune recherche un restaurateur ou groupement de restaurateurs pour exploiter et gérer sous sa propre entreprise, l'équipement dont elle est propriétaire suivant le concept ci-après :
La commune souhaite implanter au cœur du village, au centre des activités touristiques de son territoire, un espace de restauration et de détente, en bordure de Somme.
Le restaurant servira de la cuisine maison de terroir, à base de produits du marché, dans une atmosphère champêtre détendue. Il a vocation à devenir un ''repère'' fréquenté par les gourmets, attirés par son cadre naturel enchanteur, en bord de Somme.
La clientèle sera composée du grand public, longiniens et longiniennes et plus généralement de picards, de visiteurs d'autres régions, en période touristique et aussi des salariés des entreprises des environs.
Le candidat sélectionné devra assurer une certaine promotion touristique de la destination, de concert avec l'Office de Tourisme local.
Description du Site :
La capacité d'Accueil en places assises de l'équipement est de 50 (28 en terrasse fermée avec vue panoramique et 22 en salle). Les travaux de réhabilitation et de mise aux normes d'exploitation ont été menés par la commune y compris l'équipement de la cuisine. L'aménagement de l'établissement est le suivant :
A l'entresol, sont implantés:
La zone de livraison et réception des matières premières, un local déchet tampon, une chaufferie (chauffage central au fuel), une cave, un espace pelouse avec accès embarcadère,
Au rez-de-chaussée :
La salle de restauration, la terrasse fermée avec coursive, la cuisine, la laverie, les sanitaires clients
Au 1 ier étage:
Le vestiaire, les sanitaires du personnel et un appartement de type III
Conditions financières
Cet ensemble sera mis à disposition du restaurateur ou du groupement de restaurateurs, par bail commercial, d'une durée de 6 ans renouvelable par période de 3 ans et dont les 6 premières années seront fermes. La location s'opérera moyennant une redevance annuelle qui sera versée par l'exploitant. Cette redevance sera composée d'une part fixe au titre de l'occupation des locaux, d'un montant estimé à 18 000,00€ par an, payable au trimestre et d'une part variable, à partir de la deuxième année d'exploitation, correspondant à un pourcentage du chiffre d'affaires, proposé par le candidat. Cette seconde part pourra être plafonnée en montants.
La totalité du chiffre d'affaires réalisé doit être déclaré à la commune de Long, sur la base d'un bilan et d'un compte d'exploitation certifié par un commissaire aux comptes.
A l'issue de la période de 9 ans, l'équipement pourra être cédé par la commune à l'exploitant.
Mise à disposition des locaux
La commune de Long fournit un équipement réhabilité et mis aux normes d'aujourd'hui (Électriques, sanitaires, accessibilité, ...) pour l'exploitation et la gestion d'un restaurant, y compris la cuisine.
Le candidat prendra possession des lieux en l'état. Il aura en charge la décoration de l'établissement, son équipement mobilier (chaises, tables, supports) et en vaisselles, couverts, etc.
Prestations à réaliser par les candidats et le titulaire
L'aménagement en mobilier intérieur et le cas échéant, extérieur (tables, chaises, meubles, supports divers…), seront à la charge du titulaire. Il prendra soin de respecter les dispositions réglementaires liées à l'accessibilité. Sont aussi à la charge du titulaire, l'équipement en éléments de service (vaisselles, couverts, linge de table, etc.) et en ustensiles et matériels de cuisine (batteries de cuisine, appareils de préparation, etc.) et en tout autre équipement nécessaire au bon fonctionnement du restaurant.
Les candidats auront soin de prendre connaissance de tous les détails correspondant à l'état des installations et des équipements existants.
Le titulaire ne pourra en aucun cas, se prévaloir d'une méconnaissance quelconque des éléments mis à disposition et de ceux qui seront à sa charge.
Ainsi, il ne pourra prétendre à aucune indemnisation ou faire valoir quelques arguments auprès de la commune de Long pour obtenir des aménagements, des participations sous quelque forme que ce soit et à quelques fins que ce soient, notamment, pour mettre en œuvre son projet.
Horaire d'exploitation
Le restaurant sera ouvert au minimum, du mardi au dimanche, avec un service le midi et un service le soir. Le bénéficiaire s'engage à mettre en place une enseigne et une signalétique claire, informant les clients des horaires d'ouverture et de fermeture. Cette signalétique sera soumise à l'acceptation du bailleur préalablement à son installation.
Engagement en termes de Qualité
Le titulaire s'engage au minimum à répondre aux exigences décrites ci-dessous, sur le plan de la restauration :
Accueillir la clientèle de façon efficace et immédiate,
Mettre en œuvre des cartes en bon état, attrayantes et bien présentées. La carte devra être traduite en anglais.
Assurer que l'ensemble du personnel est poli, aimable, souriant et discret, avec une présentation propre et soignée.
Offrir un cadre agréable, chaleureux et annonçant un moment de détente (sols, murs, plafonds propres et entretenus).
Utiliser de la vaisselle, des nappes et serviettes, propres et en bon état .
Servir du pain frais et de qualité. Présenter les mets de façon appétissante, à bonne température.
Afficher des tarifs clairs et explicites.
Prévention des risques
L'entreprise prend toutes les dispositions de manière à être conforme à l'ensemble des textes règlementaires qui lui sont applicables et notamment :
Renseignements d'ordre juridique, économique, financier et technique.
Les candidats devront présentés un dossier comportant les éléments suivants :
Éléments relatifs à la candidature
Éléments relatifs à l'offre :
Une note de présentation du projet détaillant :
Une proposition de compte d'exploitation prévisionnel sur 3 ans et proposition de redevance annuelle, en pourcentage, établie sur la base du chiffre d'affaires envisagé, à partir de la seconde année.
Conditions de remise des dossiers
Les dossiers seront adressés sous enveloppes cachetées comportant l'ensemble des pièces dont la production est exigée par le présent avis et portant la mention suivante :
‘'Candidature pour l'Appel à projet « Restaurant Au Fil de l'Eau » - Ne Pas Ouvrir''
Les plis devront être adressés :
- soit par voies postales, par tout moyen permettant de donner date et heure certaines, à l'adresse suivante : Mairie de LONG
5 Grande Rue
80510 LONG
- soit par remise contre récépissé : les entreprises devront se présenter à l'adresse suivante :
Mairie de LONG
5 Grande Rue
80510 LONG
Horaires d'ouverture : du mardi au vendredi de 11h à 12H et de 16H30 à 18H30 ou lors des permanences des élus le lundi de 18H30 à 19H30, le mercredi aux même horaires et le samedi, de 11H à 12H.
Date limite de réception des projets : le 21/12/2011 à 16heures
Durée de validée de l'offre des candidats: 120 jours à compter de la date limite de remise des offres.
Critères d'évaluation des projets :
Les projets seront évalués au regard des éléments suivants :
Une négociation pourra avoir lieu avec l'ensemble des candidats ou avec seulement certains d'entre eux, en fonction de l'intérêt du projet présenté.
Renseignements complémentaires
Pour tout renseignement complémentaire, veuillez contacter, Lionel Bacquet, Secrétaire de Mairie, Mairie de Long, tél : 0322318021 ou mairie.long@wanadoo.fr Les dossiers sont remis à titre gracieux...



CUISINE ET SALLE DE PLONGE





Un appel d'offres pour le matériel de a été lancé et l''ouverture des plis a eu lieu le 7 juillet à 16 heures. L'entreprise Henri Julien a été choisie.

Appel d'offre reavaux brasserie
Appel d'offres aire camping car et descriptif des travaux
Délégation de service public, par affermage pour la gestion d'un restaurant situé sur le Territoire de la commune de LONG (80)
Publication dans les journaux le 26 01 2011 ( Cet appel à candidature a été déclaré infructueux... une nouvelle procédure plus simple sera lancée prochainement...


Monsieur VILLETTE est chargé de suivre les travaux
Voici les artisans retenus pour les travaux (01 07 2011)
Lot n°1 démolition gros oeuvre à Monsieur Guillaume MARTIN domicilié à Blangy/Bresle
Lot n°2 charpente métallique à CMP domicilié à Amiens
Lot n°3 couverture - étanchéité à l'EURL BRAILLY domicilié à Gorenflos
Lot N°4 Menuiseries extérieures métalliques à TECMIR
Lot N°5 Menuiserie bois - charpente à SARL LONGUEIN domicilié à Abbeville
Lot n°6 plâtrerie à Monsieur Guillaume MARTIN
Lot n°7 électricité -vmc à la SARL GAFFE domiciliée à CAHON
Lot n°8 chauffage plomberie à l'entreprise Olivier LEROY domciliée à Bouillancourt en Séry
Lot n°9 peinture à la SARL Eric GLANDIER domiciliée à Abbeville
Les travaux sont commencés et devraient s'achever à la mi-septembre 2011...
Marché adapté
COMMUNE DE LONG
=-=-=-=-=-=
AVIS D'APPEL PUBLIC A LA CONCURRENCE
=-=-=-=-=-=
Nom et adresse officiel de l'organisme acheteur : Commune de LONG (80510)
Objet du marché : Rénovation d'une Brasserie dans le cadre du projet « Au fil de l'Eau »
Type de marché de travaux : Exécution
Lieu d'exécution : 3 Grande Rue - 80510 LONG
Caractéristiques principales : Le délai global d'exécution des travaux est de 4 mois, hors période de préparation et intempéries
Prestations divisées en lots : OUI
- possibilité de présenter une offre pour plusieurs lots.
1 – DEMOLTION - GROS-ŒUVRE - CARRELAGE
2 – CHARPENTE METALLIQUE
3 – COUVERTURE - ETANCHEITE
4 – MENUISERIES EXTERIEURES METALLIQUE
5 – MENUISERIE BOIS – CHARPENTE BOIS
6 – PLATRERIE
7 – ELECTRICITE – VMC
8 – PLOMBERIE - CHAUFFAGE
9 – PEINTURE
Cautionnement et garanties exigés le cas échéant :
Retenue de garantie de 5 % qui peut-être remplacée par une caution personnelle et solidaire.
Justifications à produire quant aux qualités et capacités du candidat : celles fixées dans le règlement de consultation
Critères d'attribution : Suivant règlement de consultation
Type de procédure : Procédure adaptée selon l'article 28 du Code des Marchés publics
Date limite de réception des offres : 25 MARS 2011 à 17 H 00
Délai de validité des offres : 120 jours
Adresse à laquelle les documents peuvent être obtenus :
ALPHAPRIM'
75 Chaussée du bois
80100 ABBEVILLE
Tél : 03 22 20 37 77
Fax : 03 22 19 12 12
e-mail : alphaprim80@club.fr
Renseignements complémentaires :
* d'ordre administratif :
Mairie de LONG
80510 – LONG
Tél/Fax : 03.22 31 80 21
site www.long.fr
* d'ordre Technique :
Gérald VILLETTE
Economiste de la Construction
7, place de l'Eglise
80640 THIEULLOY l'ABBAYE
Tél / Fax : 09.52.48.12.12
e-mail : villette.gerald@hyahoo.fr
Envoi des offres à l'adresse suivante :
Monsieur le Maire
80510 - LONG
Les offres seront envoyées en recommandé avec AR ou déposées en mairie contre récépissé.
Date d'envoi à la publication : 18 Février 2011


Les travaux ont été confiés à l'entreprise REVETet la borne à Trigano ... ils sont maintenant presque terminés... restent les branchements électriques à mettre en place... le prix de l'électricité sera de 2 €, 100 litres d'eau coûteront 2€ et l'emplacement 5 €
AVIS D'APPEL PUBLIC A LA CONCURRENCE
Commune de LONG
Procédure adaptée (article 28 du code 2009 des marchés publics)
1. Identification de la collectivité qui lance la consultation : Commune de LONG Mairie : 5 Grande Rue, 80510 LONG
2. Personne responsable du marché : M. LÉPINE Francis, Maire -
Tél. : 03 22 31 80 21
3. Objet de la consultation : Création d'une aire de service et de stationnement de camping cars et stabilisation de deux emplacements de parking : face au camping municipal, rue de la Chasse à Vaches
4. Désignation des lots :
1. Création d'une aire de service (gros œuvre et servitudes)
2. Création de 8 aires de stationnement pour camping car et zone de repos (dalles à engazonner)
3. Electricité : Pose d'une borne de service type Euro Parc, éclairage des zones de stationnement, alimentation de l'aire de service
4. Plantations
5. Stabilisation des deux parkings (dalles à engazonner)
6. Fournitures : borne multi-services, bornes alimentation en électricité,luminaires de guidage …….
5. Délai d'exécution des travaux : 2 mois
6. Des variantes seront-elles prises en compte : oui (concernant les 8 aires de stationnement)
7. Condition de participation : Pièces et justificatifs cités aux articles 44 et 46 du CPM
8. Condition d'obtention des dossiers : Le dossier de consultation des entreprises est disponible en Mairie, du mardi au vendredi (tél. : 03 22 31 80 21).
9. Pendant les horaires de fermeture, téléphoner au 06 75 66 36 64
10. Date et heures limites de remise des offres: mardi 1 mars 2011,
12 h 00
11. Personne à contacter pour visite des lieux et renseignements complémentaires : M. Jean Noël Fossati, 1 er adjoint - Tél. : 06 75 66 36 64 Site : www.long.fr
12. Date d'envoi du présent avis à la publication : 31 janvier 2011
13. Délai de validité des offres : 90 jours
14. Les offres devront être transmises sous double pli cacheté, envoyé en recommandé avec AR. L'enveloppe extérieure portera la mention « Candidature pour la création d'une aire de camping car – Lot N° - Ne pas ouvrir ».
_______________________________________________________________________________________________________________________________________________________________________________________________________________
MAITRE D'OUVRAGE : Mairie de LONG (80)
Ce document comporte : 29 p
1- Généralités ............................................................................................................................. 4
I. DEFINITION DES TRAVAUX - REGLEMENTATIONS .................................................................... 5
I-1. GENERALITES ................................................................................................................... 5
I-2. PRESENTATION du site et des travaux à mettre en oeuvre ............................... 5
I-3. reference au ccap ...................................................................................................... 5
I-4. OBJET DU DOCUMENT ...................................................................................................... 5
I-5. surface concernée ..................................................................................................... 6
I-6. Etendue des travaux .................................................................................................. 6
I-7. TRAVAUX NON-PRÉVUS .................................................................................................... 6
I-8. DESSINS CONTRACTUELS ................................................................................................ 7
I-9. QUANTITES ....................................................................................................................... 7
I-10. Caractéristiques du site .......................................................................................... 7
I-11. Connaissance des lieux ............................................................................................. 8
I-12. Verification des dimensions ..................................................................................... 8
I-13. Opérations topographiques .................................................................................... 8
I-14. NATURE DU SOL EN PROFONDEUR .................................................................................. 8
I-15. MARCHÉS .......................................................................................................................... 8
I-16. PRESTATIONS A LA CHARGE DE l'ENTREPRISE titulaire du marché ........................ 9
I-17. REGLES D'EXECUTION GENERALES ................................................................................. 9
I-18. Documents généraux de référence ....................................................................... 9
I-19. Contraintes et sujétions ........................................................................................ 10
I-20. CONSERVATION DES LIEUX, PROTECTION DES OUVRAGES EXISTANTS ...................... 10
I-21. obligations des entrepreneurs ............................................................................ 11
I-22. BRUITS DE CHANTIER - Nuisances ............................................................................... 12
I-23. SALISSURES DU DOMAINE PUBLIC ................................................................................. 12
I-24. TRAVAUX SOUS-TRAITES ............................................................................................... 12
I-25. PROPRETE DU CHANTIER - NETTOYAGES ..................................................................... 12
I-26. ÉTUDES TECHNIQUES - PLANS D'EXECUTION ................................................................ 12
I-27. ORGANISATION ET PREPARATION DES TRAVAUX ......................................................... 13
I-28. Matériels et utilisation de produits divers ...................................................... 14
I-29. Réunions de chantier - comptes-rendus .............................................................. 14
I-30. Qualite du travail ...................................................................................................... 15
I-31. Modifications du cahier des charges ................................................................... 15
I-32. TRAVAUX PRELIMINAIRES .............................................................................................. 15
I-33. Protections des ouvrages ..................................................................................... 15
I-34. REMISE EN ETAT DES LIEUX .......................................................................................... 15
I-35. RECEPTION - DELAI DE GARANTIE ................................................................................. 16
I-36. RESPONSABILITE DES ENTREPRENEURS ...................................................................... 16
I-37. CLAUSES DIVERSES ....................................................................................................... 17
I-38. REDRESSEMENT JUDICIAIRE .......................................................................................... 17
II. Specifications et prescriptions TECHNIQUES .............................................................. 18
II-1. 2.1 PRESCRIPTIONS RELATIVES AUX FOURNITURES ET MATERIAUX ........................... 18
II-2. Enlèvement des déchets et gravois .................................................................... 19
II-3. Transports internes pour la réalisation des travaux .................................. 19
II-4. Travaux de démolitions ............................................................................................ 20
II-5. Terrassements et nivellement .............................................................................. 20
II-6. sols ............................................................................................................................... 22
II-7. Fosse de plantation .................................................................................................. 22
II-8. caractéristiques DE LA TERRE VEGETALE .............................................................. 22
II-9. CONSTAT D'ACHÈVEMENT DES TRAVAUX ...................................................................... 22
2- Description des travaux ................................................................................................ 23
I. TRAVAUX PRELIMINAIRES / PREPARATION DE CHANTIER .................................................... 24
I-1. Obligations particulières non limitatives ......................................................... 24
I-2. POSTE 1.2 Intervention .............................................................................................. 24
I-3. POSTE 1.3 Panneau de chantier ............................................................................... 24
II. DEMOLITION ........................................................................................................................... 25
III. CREATION DE VOIRIE ............................................................. Erreur ! Signet non défini.
IV. CREATION D'UNE AIRE TECHNIQUE POUR CAMPING CAR ..... Erreur ! Signet non défini.
V. REGALAGE DES TERRES, ENSEMENCEMENT ET PLANTATIONS ............................................ 27
V-1. Regalage des terres ................................................................................................ 27
V-2. Ensemencement sur terre végétale .................................................................... 27
VI. OPTIONS OBLIGATOIRES ....................................................................................................... 28
VI-1. Fourniture et plantation de boutures de saules ( surface : 250 m2) ........... 28
VI-2. Fourniture et plantation d'arbres en motte ..................................................... 29
Le présent document est l'un des éléments constitutifs de l'appel d'offres concernant les travaux ayant trait à l'aménagement d'une aire de service et de stationnement de camping car à Long (Somme). Intervention sur le site dans son état actuel.
Au abords de son camping municipal, la mairie de Long possède un terrain qu'elle entend affecter partiellement au stationnement des camping car. afin de limiter leur stationnement incontrôlé sur l'ensemble du territoire communal
Ce terrain est aujourd'hui enherbé et bordé d'une route bitumée, . Il est longé au nord par le chemin de halage du canal de la Somme, Il est pratiquement mitoyen à l'ouest, d'une centrale hydro-électrique construite en 1902 et aujourd'hui classée Monument Historique. Il est bordé a l'est par le terrain de camping municipal .
Ce site présente un caractère patrimonial remarquable. Outre la Centrale Hydro-électrique, précitée, il ouvre des perspectives sur le château et l'église également protégé au titre des Monuments Historiques.
Ce marché comporte plusieurs volets :
Un travail d'aménagement de sol pour la circulation et le stationnement des véhicules
La réalisation d'une aire de service pour camping car
La réalisation d'une aire de stationnement ( 8 emplacements ) pour camping car
la plantation d'arbres et d'arbustes et graminées,
Le présent CCTP fixe les conditions techniques particulières d'exécution des travaux en vue de l'aménagement l'aire de camping car de la commune de long (80). Il définit l'étendue des travaux et fournitures à la charge de l'entrepreneur titulaire du marché.
Le terme "Entrepreneur" désigne l'adjudicataire du marché chargé par le maître d'ouvrage de mener à bien les travaux décrits dans le cahier des charges ci-dessous.
Le CCTP est contractuel et les indications qui s'y trouvent ne sont pas limitatives.
En conséquence, il demeure contractuellement convenu que, moyennant le prix porté sur l'acte d'engagement ou servant de base au marché, l'entrepreneur titulaire du marché devra l'intégralité des travaux nécessaires au complet et parfait achèvement des ouvrages, en conformité avec les plans et avec la réglementation et les normes contractuellement réputées connues.
L'entrepreneur titulaire du marché est contractuellement réputé avoir parfaite connaissance de l'ensemble des documents constituant le CCTP.
Il est formellement stipulé qu'en aucun cas, un entrepreneur ne pourra opposer entre eux les différents documents constituant le CCTP contractuel.
En tout état de cause, il est précisé que dans le cas éventuel de divergences implicites ou explicites entre ces documents, la décision sera du ressort du maître d'ouvrage.
Ces travaux incluent les raccordements aux parcelles voisines et voiries environnantes.
Les travaux à la charge de l'entrepreneur concernent les travaux de préparation de chantier, de démolition et exportation (avec fourniture des bordereaux de suivi des déchets, plus particulièrement dans le cas des déchets amiantés), terrassement, abattage et dessouchage d'arbres, réfection de berges, engazonnement, plantations.
L'entrepreneur étant soumis aux règles de l'art et aux différentes réglementations, il devra, outre les ouvrages énumérés au CCTP du présent marché ou figurés sur les plans, tous les menus travaux de sa profession, ainsi que les fournitures nécessaires à leur parfait et complet achèvement et en particulier :
Coordination de chantier
Nettoyage des voiries aussi souvent que nécessaire (nettoyage des voiries utilisées à proximité du chantier, travaux de réfection de voirie pouvant lui être imputés),
Essais de toute nature nécessaires au contrôle des travaux,
Nettoyage du chantier avant départ des lieux, comprenant :
le décrottage des chaussées
le balayage et enlèvements des gravats
l'enlèvement de tous les appareils, matériaux ou matériels inutilisés ou inutilisables
la remise en état de toutes les surfaces concernées par les travaux
D'une manière générale livraison d'un chantier propre. En cas de manque, le nettoyage sera effectué par une autre entreprise aux frais du présent entrepreneur.
Maintien des communications et écoulement des eaux,
R esponsabilité civile et pénale de tous les dommages résultant d'une insuffisance de sécurité,
Protection des végétaux conservés (système racinaire et aérien),
Fourniture et transport à pied d'œuvre de tous les matériaux et matériels nécessaires, déchargement et rangement aux emplacements voulus,
Implantation et établissement des profils...
Le piquetage précis des plantations sera réalisé par l'entrepreneur sous l'autorité du maître d'ouvrage.
Sont inclus plus particulièrement dans la prestation :
la prévision du régalage général des terrains en fonction des plans remis et de l'examen du site. Les pentes de terrain sont laissées à l'initiative de l'entrepreneur,
l'absence de plus value due à des sujétions prévisibles,
la purge de poches de terrain de qualité inférieure et leur remplissage en terre végétale,
le compactage des remblais selon les normes en vigueur,
Les travaux suivants ne sont pas à prévoir au présent marché.
Démontage et enlèvement :
des coffrets de branchement gaz et électricité intérieurs ou extérieurs
des compteurs
des plaques
des canalisations
portant le nom des concessionnaires des services publics.
Démontage et enlèvement des prises d'eau sur les canalisations publiques et des compteurs d'eau.
Démontage et enlèvement:
des lignes électriques
des lignes téléphoniques
des lignes éclairage public
ou des lignes appartenant à un autre concessionnaire.
Les entreprises se reporteront au CCAP pour connaître avec précision la liste des documents constituant les pièces constitutives du marché.
Les travaux à exécuter sont définis par les pièces écrites et les pièces graphiques. L'ensemble de ces documents constitue un tout qui définit la prestation de l'entrepreneur.
Les plans techniques faisant partie du dossier d'appel d'offres sont des plans de principe dont l'entrepreneur devra vérifier le contenu avant la remise de son offre. L'entrepreneur sera seul responsable des quantités et des prix. Les réserves éventuelles seront formulées au moment de la soumission. Aucune contestation ne sera admise après remise de l'offre.
Il appartient aux entreprises consultées, au cours de l'étude détaillée qu'ils feront en vue d'établir leur offre, de signaler au maître d'ouvrage, le cas échéant, les omissions, imprécisions ou contradictions qu'ils auraient pu relever dans les documents qui leur ont été remis, et de demander tous les éclaircissements qui leur paraissent nécessaires. L'entrepreneur ne pourra par conséquent se prévaloir d'aucune erreur ou omission susceptible d'être relevée dans les pièces du marché pour refuser l'exécution des travaux nécessaires au complet achèvement selon les règles de l'art et les précisions données par les pièces du marché, ou pour prétendre ultérieurement à un supplément de prix.
L'entrepreneur devra toujours se conformer scrupuleusement aux instructions qui lui seront données par le maître d'ouvrage
Les plans d'exécution seront établis, pour les ouvrages exécutés, par le titulaire du marché.
A la fin des travaux, les plans de recollement conformément à la réalisation des travaux, devront être établis et remis par l'entreprise titulaire du marché au Maître d'ouvrage. L'entrepreneur est responsable de la construction des ouvrages, il lui appartient de vérifier toutes les cotes et dimensions sur les plans et dessins.
Au moment de la remise de son offre de prix, l'entrepreneur est tenu d'indiquer tous les prix unitaires des matériaux à mettre en œuvre, conformément au quantitatif et au plan. Ces quantités devront être vérifiées car l'entrepreneur devra exécuter ses travaux dans le respect total des plans et du cahier des charges.
L'entrepreneur est notamment averti que les travaux ont lieu sur un site a fort caractère patrimonial. Cette contrainte impose des modes opératoires adaptés que l'Entrepreneur ne pourra ignorer.
Il ne pourra, une fois l'offre remise, se prévaloir d'aucune modification en plus sur cette offre, par le fait du terrain et de son contenu, des accès et des conditions d'exécution qu'ils pourraient entraîner.
Accès du terrain : L'accès du chantier pour les entreprises se fera par l'impasse communale dite de " la chaussée à vaches", raccordée à la rue du 8 mai 1945.
Les entrepreneurs sont réputés par le fait d'avoir remis leur offre :
s'être rendus sur les lieux où doivent être réalisés les travaux,
avoir pris parfaite connaissance de la nature et de l'emplacement de ces lieux et des conditions générales et particulières qui y sont attachées,
avoir pris parfaite connaissance de l'état du terrain qui leur sera livré,
avoir pris connaissance des possibilités d'accès, d'installations de chantier, de stockage, de matériaux… des disponibilités en eau, en énergie électrique,...
avoir pris tous renseignements concernant d'éventuelles servitudes ou obligations.
En résumé les entrepreneurs sont réputés avoir pris connaissance parfaite des lieux et de toutes les conditions pouvant en quelque manière que ce soit avoir une influence sur l'exécution et les délais, ainsi que sur la qualité et les prix des ouvrages à réaliser.
Aucun entrepreneur ne pourra donc arguer d'ignorances quelconques à ce sujet pour prétendre à des suppléments de prix ou à des prolongations de délais
L'Entrepreneur est tenu de vérifier toutes les cotes notamment de distances et de surfaces. Il signalera en temps utile à la mairie de Long les erreurs qu'il pourra constater. En cas d'oubli ou d'inobservation de cette clause, il prendra à son compte les modifications qu'entraîneraient ces erreurs.
Il demeure expressément convenu que l'Entrepreneur devra tout ce qui, même éventuellement omis au présent CCTP, serait nécessaire au complet achèvement des ouvrages conformément aux règles de l'art. Il provoquera tout renseignement complémentaire sur ce qui semblerait douteux ou incomplet.
Avant de commencer les travaux, l'Entrepreneur effectuera à ses frais toutes les démarches utiles pour la détermination des alignements et points de niveau. L'Entrepreneur devra la conservation permanente des bornes et repères jusqu'à l'achèvement des travaux. Le rétablissement ou la remise en état immédiate de ceux qui viendraient à être détériorés ou déplacés, soit accidentellement, soit en raison de la progression des travaux, sera à la charge de l'Entrepreneur. Cette prescription s'applique quelle que soit l'origine du déplacement ou de la disparition, occasionné ou non par l'Entrepreneur adjudicataire du marché.
Sur les plans fournis par le maître d'ouvrage, seule une partie des éléments visibles tels que poteaux et regards apparents ont été relevés. La responsabilité de la mairie de Long ne saurait être engagée sur le positionnement ou l'absence de positionnement d'autres réseaux, visibles ou non visibles.
Aucun sondage n'a été effectué sur le site destiné à la réalisation des présents travaux. Si l'entrepreneur le juge utile, il pourra procéder, à ses frais, à toutes investigations qu'il jugera utile pour connaître la nature du sol en profondeur, par pénétromètre ou autre méthode de son choix.
Il est rappelé que le marché à prix global et forfaitaire est celui où les prestations demandées à l'entrepreneur sont déterminées et où le prix est fixé dès la signature du marché
Il est donc bien spécifié que le prix souscrit par l'entrepreneur sur sa soumission ou son acte d'engagement correspond à une opération livrée en parfait et complet état de finition.
Ne seront donc pas considérés comme travaux supplémentaires et de ce fait ne pourront donner lieu à ordre de service ou à supplément, tous les travaux et fournitures nécessaires à l'entier et parfait achèvement de l'opération dans le cadre des plans et du CCTP souscrits en parfaite connaissance de cause.
Aucun entrepreneur ne pourra donc réclamer de supplément en s'appuyant sur ce que les indications mentionnées sur les plans et le CCTP pourraient présenter d'incomplet et de divergent, ou sur des omissions ou contradictions évidentes qui pourrait se révéler,
L'entrepreneur étant soumis aux règles de l'art, il devra, outre les ouvrages énumérés au CCTP ou figurés sur les plans, tous les menus travaux de sa profession, ainsi que les fournitures nécessaires à leur parfait et complet achèvement et implicitement :
les demandes et autorisations préalables de toute nature auprès des administrations. Les copies de toutes correspondances et autres documents relatifs à ces demandes et démarches devront être transmises au maître d'ouvrage. Les permis et autorisations requis pour la réalisation des travaux seront sollicités par l'entrepreneur, mais toute assistance nécessaire sera fournie par le maître d'ouvrage ou ses représentants. Ils devront être réalisés en temps voulu pour ne pas perturber l'avancement du chantier et permettre un respect du calendrier de travaux défini. En cas de défaillance, le maître d'ouvrage fera exécuter ce travail à la charge de l'entreprise concernée.
toutes les installations de chantier conforme à la réglementation ;
la fourniture, transport et mise en œuvre de tous les matériaux, produits et composants nécessaires à la réalisation parfaite et complète de tous les ouvrages du marché ;
l'établissement des plans d'installation de chantier ;
l'établissement de tous les plans et autres documents mis à leur charge par les pièces du marché ;
la fixation par tous moyens des ouvrages ;
l'enlèvement de tous les gravois des travaux et les nettoyages après travaux ;
la main-d'œuvre et les fournitures nécessaires pour toutes les reprises, finitions, vérifications, réglages, etc. des ouvrages en fin de travaux et après réception ;
les incidences consécutives aux travaux en heures supplémentaires, nécessaires pour respecter les délais d'exécution, le cas échéant ;
le nettoyage du chantier et des chaussées ;
la circulation sur emprise routière en respectant la réglementation en vigueur ;
la réfection des routes et des ouvrages détériorés par des engins ;
la prise en compte de l'ensemble des détails et sujétions représentés sur les plans ; ces détails pourront évoluer lors de la mise au point de l'exécution ;
les clôtures provisoires de chantier pour ses zones d'intervention ;
la protection des ouvrages réalisés sur la partie privée et publique ;
l'installation des aires de stockage en conformité avec le document du CCTP ;
la protection des ouvrages réalisés sur la partie privée et publique jusqu'aux constats d'achèvement des travaux ;
Ainsi que tous les autres frais et prestations qui seraient non énumérés ci-dessus, mais nécessaires à la réalisation parfaite et complète des travaux.
Tous les travaux devront être exécutés selon les règles de l'art avec toute la perfection possible et selon les meilleures techniques et pratiques en usage.
À ce sujet, il est formellement précisé aux entreprises qu'il sera exigé un travail absolument parfait et répondant en tous points aux règles de l'art, et qu'il ne sera accordé aucune plus-value pour obtenir ce résultat, quelles que soient les difficultés rencontrées et les raisons invoquées.
La démolition de tous travaux reconnus défectueux par le maître d'œuvre et leur réfection jusqu'à satisfaction totale seront implicitement à la charge de l'entrepreneur, et aucune prolongation de délai ne sera accordée.
Tous les matériaux, éléments et articles fabriqués "non traditionnels" devront toujours être mis en œuvre conformément aux prescriptions de l'avis technique ou, à défaut, aux prescriptions du fabricant.
Cahier des clauses techniques générales (CCTG) applicable aux Marchés de travaux passés au nom de l'état et des collectivités locales ;
Cahier des clauses spéciales DTU ;
Cahier des charges des documents techniques unifiés DTU , règles de calcul DTU et autres documents techniques unifiés publiés 30 jours avant la remise des offres ;
Cahier des Clauses Techniques Usuelles (CCTU) ;
Normes françaises : les fournitures et ouvrages seront prévus et exécutés pour être conformes aux normes AFNOR En l'absence de telles normes, les procédés et matériaux non traditionnels admis par le Maître d'Ouvrage devront, sauf dérogation écrite explicite, avoir obtenu l'avis technique du Centre Scientifique et Technique du Bâtiment (CSTB) et être mis en œuvre aux conditions des recommandations de ces avis techniques.
Loi n°91-663 du 13 juillet 1991
Arrêté du 31 août 1999
Loi n°2005-102 du 11 février 2005
Arrêté du 1° août 2006
Décrets n°99-756 et n°99-757 du 31 août 1999
Circulaire du 23 juin 2000
Décret n°2006-555 du 17 mai 2006
Les dispositions de cet article s'appliquent sans restriction à l'entrepreneur, ses co-traitants, sous-traitants et fournisseurs.
Les véhicules et engins devront obligatoirement et uniquement emprunter les emplacements réservés au chantier, définis en accord avec le maître d'ouvrage.
L'entrepreneur supportera l'intégralité des dépenses relatives aux réparations de dégradations éventuelles de toutes natures causées à toutes les voies privées utilisées pour les transports liés aux travaux.
L'entrepreneur prendra toutes les précautions utiles pour éviter les chutes et/ou entraînements de matériaux sur la voirie publique ou privée. Il devra procéder immédiatement à tous les nettoyages et balayages nécessaires pour maintenir la propreté des lieux et permettre la circulation dans les meilleures conditions, notamment par le décrottage des véhicules et engins divers avant leur sortie du chantier. Les dépenses relatives à ces opérations d'entretien seront à la charge de l'entrepreneur.
Au fur et à mesure de l'avancement des travaux, l'entrepreneur devra débarrasser le chantier et ses abords de tous les matériaux, débris, gravats,… n'ayant plus d'utilité par la suite, ceci afin d'éviter toute dispersion dans le milieu naturel.
L'entrepreneur devra veiller à ne causer aucun dommage aux bâtiments, structures, systèmes et réseaux se trouvant en surface ou en sous-sol sur le terrain du maître d'ouvrage, même si certains d'entre eux, mal connus, ne sont pas définis sur les plans.
Il sera tenu responsable des accidents ou dommages qui, par son fait, par une exécution défectueuse ou bien par manque de précautions ou de surveillance, pourraient arriver aux personnes et aux choses. Il est expressément stipulé que la maîtrise d'ouvrage est entièrement dégagée de toute responsabilité à l'égard des chefs visés ci-dessus.
En cas de dommages, l'entrepreneur préviendra immédiatement le maître d'ouvrage ou ses représentants et le coût des remises en état sera à la charge de l'entrepreneur et sera réputé inclus dans les prix du marché.
L'entrepreneur ne devra effectuer strictement aucun rejet d'effluent dans le milieu naturel et sur l'emprise globale du chantier. Les installations de chantier en général, mais surtout celles relatives à l'entretien des engins et à la distribution de carburant seront protégées contre tous risques de pollution par des dispositifs soumis à l'approbation des administrations compétentes.
L'entrepreneur devra prendre toutes les dispositions nécessaires quelles qu'elles soient pour assurer l'évacuation le plus vite possible des eaux superficielles, et ceci pendant toute la durée des travaux et jusqu'à la réception.
Dans le cas d'impossibilité d'écoulement gravitaire, l'évacuation devra être assurée par pompage.
Les frais entraînés pour satisfaire à ces impératifs d'évacuation des eaux superficielles sont implicitement compris dans les prix du marché.
L'entrepreneur devra tenir compte de la présence de réseaux à l'intérieur du site et, si nécessaire, se rapprocher des concessionnaires pour toutes les contraintes à considérer et les précautions à prendre (dispositions de sécurité,…).
Dans le cas de rencontre de réseaux en service lors de l'exécution des travaux de démolition ou de terrassements, toutes dispositions seront à prendre par l'entrepreneur pour ne pas endommager les canalisations ou câbles rencontrés.
Dès localisation d'un de ces ouvrages, l'entrepreneur devra immédiatement en avertir le maître d'ouvrage et le service concessionnaire concerné. L'entrepreneur devra assurer la sauvegarde et la protection de ces ouvrages rencontrés pendant toute la durée nécessaire en accord avec le service concerné, sans que ces prestations puissent donner lieu à un supplément de prix.
L'entrepreneur devra exercer la plus grande surveillance, se soumettre à tous les règlements en vigueur, aux ordres qui pourraient lui être donnés par le maître d'ouvrage, du point de vue de la sécurité publique, soit même dans son intérêt personnel, le tout sans indemnité supplémentaire, attendu que les prix ont été établis en tenant compte implicitement de tous faux frais et dépenses occasionnés par les mesures dont il s'agit.
Il devra prévenir, dix jours francs avant le début des travaux, par imprimé réglementaire "Déclaration d'intention de commencement des travaux" les différents services des compagnies intéressées, soit l'Electricité de France, le Gaz de France, le service des eaux, la société fermière du réseau et les services des Téléphones du commencement de ces travaux ainsi que de la rencontre de leurs installations, afin qu'ils puissent prendre les mesures en conséquence.
Il devra les informer immédiatement des dégradations ou accidents survenus à leurs ouvrages. Il devra veiller tout particulièrement à la conservation des étais, supports, suspensions, planchers de protection,... que les services ou compagnies intéressées feraient placer dans l'intérêt de la préservation et de la conservation de leurs conduites ou autres ouvrages pendant l'exécution des travaux, ainsi qu'après l'achèvement de ces derniers.
A la demande, il prendra lui-même toutes les mesures nécessaires pour le maintien de ces canalisations ou conduites.
La protection, la conservation ou le déplacement des installations d'eau, d'électricité, téléphone., gaz,... pendant l'exécution des travaux incombent aux services, compagnies ou particuliers intéressés, mais sans que la responsabilité du maître de l'ouvrage puisse être recherchée par l'entrepreneur à ses risques et périls un recours contre lesdits services, compagnies et autres intéressés, lorsqu'il y a lieu.
L'entrepreneur ne sera pas admis à présenter des réclamations de quelque nature que ce soit, du fait que le tracé ou l'emplacement prévu pour les ouvrages l'obligeraient à prendre des mesures de soutien ou piquage de canalisations ou conduites quelle qu'en soit l'importance.
L'entrepreneur devra respecter tous les règlements et décrets généraux ou particuliers, applicables aux travaux du marché.
Il devra prendre contact en temps utile avec les services compétents et se renseigner sur les conditions particulières qui pourraient lui être imposées pour l'exécution de leurs travaux.
Il supportera toutes les conséquences des règlements administratifs, notamment celles qui résultent des règlements de police en vigueur ou à intervenir, qui se rapportent plus particulièrement à la barrière sur rue, aux clôtures sur chantier, au gardiennage du chantier et à la sécurité de la circulation.
Il posera tous les panneaux de signalisation nécessaires, ainsi que tous éclairages de nuit, et prendra toutes les mesures utiles en vue de prévenir les usagers du danger qu'ils peuvent encourir aux abords du chantier.
Toutes mesures devront être prises par l'entrepreneur pour garantir dans tous les cas la sécurité des tiers.
Les bruits de chantier ne devront en aucun cas dépasser les niveaux sonores fixés par la réglementation en vigueur, pour le site considéré. À défaut de réglementation municipale, les dispositions de la réglementation générale concernant la limitation des nuisances provoquées par les chantiers de travaux seront strictement applicables.
D'une manière générale, l'attention de l'entrepreneur est spécialement attirée sur la nécessité rigoureuse de conduire ses travaux de manière à limiter, dans toute la mesure du possible, la gêne susceptible d'être causée aux tiers, notamment par ses dépôts de matériaux, par les bruits du chantier et les dégagements de gaz. A cet effet, il doit prendre, sous sa responsabilité, toutes précautions utiles et se conformer aux règlements en vigueur.
Pendant toute la durée des travaux, les voies, trottoirs, etc. du domaine public, devront toujours être maintenus en parfait état de propreté.
En cas de non-respect de cette obligation, l'entrepreneur sera seul responsable des conséquences.
Aucun engin ne doit quitter le chantier pour circuler sur la voie publique tant que son état de propreté comporte un risque de souillure des chaussées.
Dans le cas où ces prescriptions ne seraient pas observées, le maître de l'ouvrage se substituera, sans mise en demeure préalable, à l'entrepreneur ; les frais ainsi engagés seront recouvrés sur lui dans les normes habituelles.
Dans le cas où il est prévu dans le marché des travaux pour lesquels l'entreprise titulaire du marché n'a pas la qualification professionnelle requise, les travaux concernés devront être sous-traités par une entreprise possédant la qualification voulue.
Le choix du sous-traitant sera à soumettre au maître d'ouvrage pour acceptation.
Cette sous-traitance se fera dans les conditions fixées par la réglementation en vigueur à ce sujet.
Le chantier devra toujours être tenu en état de propreté correct. Les gravois devront être évacués du chantier au fur et à mesure. Une fois par semaine, un nettoyage général du chantier devra être effectué.
En fin de travaux, le nettoyage final de mise en service sera à effectuer.
Les études techniques et les plans d'exécution seront à la charge de l'entrepreneur :
établissement de toutes les études sur la base de la réglementation et des normes applicables ;
établissement de tous les plans d'exécution nécessaires à la bonne réalisation des ouvrages.
L'entrepreneur aura toujours à sa charge l'établissement des plans et détails de mise en œuvre et de montage sur chantier, ainsi que les plans de réservation, le cas échéant.
Les plans et détails de mise en œuvre et de montage sur chantier devront faire apparaître tous les détails et points particuliers de l'exécution que le maître d'œuvre jugera utiles à la bonne marche du chantier.
Ces pièces seront à remettre au maître d'ouvrage en deux exemplaires dont un exemplaire reproductible.
Le maître d'ouvrage retournera le planning d'exécution de l'entrepreneur soit revêtu de son visa, soit s'il y a lieu accompagné de ses observations dans un délai maximal de huit jours.
Les rectifications qui seraient demandées devront être faites par l'entrepreneur dans le délai qui lui sera imparti.
En outre, il devra fournir des programmes détaillés chaque semaine, à fournir une semaine à l'avance.
Le planning d'exécution définira avec précision les périodes pendant lesquelles la circulation générale sur les voies publiques pourrait être gênée par les engins de l'entrepreneur et les dispositions qui seront prises pour assurer l'écoulement de cette circulation en toute sécurité.
L'entreprise titulaire du marché devra maintenir pendant la durée des travaux, un chef de chantier dont la compétence aura été approuvée par le maître d'ouvrage. En cas de carence ou de manquement ou en cas de refus de remplacer un chef de chantier jugé incompétent, le marché pourra être résilié de plein droit.
L'entrepreneur engage sa responsabilité sur le respect du délai d'exécution. Si le renfort de personnel ou le recours au travail en heures supplémentaires s'avèrent nécessaires pour terminer les travaux, le coût supplémentaire sera à la charge de l'entrepreneur du lot concerné.
Le maître d'ouvrage se réserve explicitement la possibilité de prescrire des renforcements de matériels et ce sans que l'entreprise puisse prétendre à indemnité, au cas où il apparaîtrait une divergence flagrante entre l'état d'avancement des travaux et le ou les programmes fournis par l'entrepreneur au titre du présent article.
L'entrepreneur soumettra à l'agrément du maître d'œuvre, le projet de ses installations de chantier tenant compte des spécifications énoncées à l'article du CCAP, dans un délai de huit jours à compter de la notification de la signature du marché. A savoir :
le descriptif des installations de chantier avec un plan précisant les zones à lui réserver,
le plan des pistes utiles aux engins pour les mouvements de terres et autres manipulations.
Quelle que soit la durée, les chantiers doivent être isolés en permanence des espaces réservés à la circulation des personnes et des véhicules par des barrières de protection. Cette disposition s'applique également aux installations annexes, terres et produits divers.
Les frais engagés par l'entrepreneur à cette occasion sont censés être implicitement compris dans les prix unitaires de règlement de ces travaux.
Les barrières ont pour fonction :
la signalisation et la délimitation de chantier
la sécurité du chantier et de l'environnement (piétons notamment)
la protection des zones engazonnées jusqu'à reprise des plantations
Les longueurs de barrières à mettre en œuvre devront être limitées au strict nécessaire pour réduire les emprises de chantier sur la voie publique.
L'entrepreneur sera tenu de maintenir en permanence sur le chantier, pendant l'exécution des travaux, un responsable qualifié, au courant des techniques employées pour l'exécution du marché et par ailleurs chargé de le représenter pour :
recevoir la notification des ordres de services et des instructions écrites ou verbales du maître d'œuvre et en assurer l'exécution
accepter les constats en quantité et en prix.
L'entrepreneur remettra au maître d'œuvre une copie conforme des pouvoirs donnés en son nom à la personne qu'il aura désignée pour le représenter.
Il devra posséder le certificat de capacité sur la prévention des risques amiante friable, niveau Encadrement de chantier, conformément à la norme NFX 46010.
Si un engin de guerre est découvert ou repéré, l'Entrepreneur devra :
suspendre le travail dans le voisinage et y interdire toute circulation au moyen de clôtures, panneaux de signalisation du danger, balises,...,
ne pas manipuler les engins découverts, même s'ils paraissent non dangereux,
informer immédiatement le maître d'ouvrage ainsi que la Préfecture d'Amiens chargée de faire procéder à l'enlèvement des engins non explosés,
ne reprendre les travaux qu'après en avoir reçu l'autorisation.
En cas d'inobservation de ces règles, l'entrepreneur expose sa propre responsabilité pour tous dommages survenant à des tiers du fait de ces engins. En cas d'explosion fortuite d'un engin de guerre, l'Entrepreneur devra en informer immédiatement le maître d'ouvrage et prendre les mesures définies aux paragraphes a et c du présent article.
Le matériel devra être en bon état de fonctionnement et d'entretien.
Dans le cas où le matériel utilisé par l'entreprise ne correspondrait pas au minimum exigé ou si tout ou partie de ce matériel était jugé inapte à la bonne exécution des travaux, le marché serait résilié de plein droit et sans indemnité par simple notification faite à l'entreprise.
Le matériel qui deviendrait indispensable en cours de travaux, pour quelque raison que ce soit, devra être dans un délai de 48 heures, remplacé par du matériel équivalent.
Aucun produit particulier ne pourra être utilisé sur le site par l'Entreprise sans l'accord express du maître d'ouvrage. Ceci est valable notamment pour les produits phytosanitaires, pétroliers, …
Rendez-vous de chantier:
Des rendez-vous de chantier auront lieu au moins une fois par semaine aux dates et heures fixées par le maître d'ouvrage. En outre, l'entrepreneur devra assister à tous les rendez-vous indépendamment de ses périodes d'interventions sur l'entreprise considérée ainsi qu'à tous les rendez- vous extraordinaires fixés par le maître d'ouvrage.
Pour assurer la conduite du chantier, l'entreprise désignera un représentant qui, autant que possible, sera le même pendant toute la durée des travaux. Ce représentant sera dûment suppléé de telle sorte qu'aucune des opérations ne puisse être retardée ou suspendue du fait de son absence.
Compte rendus de chantier:
Les compte rendus de chantier seront établis par le représentant de LONG suite à chacun des rendez-vous de chantier hebdomadaires et transmis à l'entreprise.
Les observations consignées dans ces comptes-rendus sont réputées connues de l'entreprise et opposables à tout différent, si celles-ci ne sont pas réfutées dans les huit jours suivant l'établissement du compte rendu.
Une ampliation du compte-rendu sera notifiée par ordre de service au Directeur de l'entreprise titulaire et, en cas de sous-traitance, l'entrepreneur principal sera tenu d'adresser un exemplaire de ce compte-rendu à chaque entrepreneur sous-traitant.
Le maître d'ouvrage se réserve le droit d'inspecter les travaux, à tout moment. En cas de carences ou de manquements de l'entrepreneur, il lui sera demandé par écrit d'en rectifier les causes dans les plus brefs délais. Ces inspections ne déchargent en rien la responsabilité de l'entrepreneur liée au cahier des charges.
Ces carences ou manquements peuvent porter sur :
le personnel que le maître d'ouvrage peut juger incompétent, non qualifié ou sur lequel on ne peut pas compter,
les équipements qui peuvent s'avérer inadéquats, impropres ou dangereux,
le déroulement des travaux, si l'entrepreneur ne respecte pas les délais ou s'il s'avère incapable de réaliser ses travaux sans interruption.
Dans le cas où l'entrepreneur ne remédie pas aux réclamations écrites et à la satisfaction du Maître d'ouvrage dans un délai de huit jours, il sera relevé de son contrat à ses propres frais, dans un délai de huit jours également.
L'entrepreneur ne pourra en aucun cas se permettre de modifier les prestations du cahier des charges sans approbation écrite du maître d'ouvrage.
Par contre, ce dernier se réserve le droit de modifier, étendre ou réduire les travaux décrits dans le cahier des charges. Dans le cas où ces modifications entraîneraient la mise en œuvre de moyens supplémentaires en matériaux ou en main d'œuvre, l'entrepreneur devra fournir, par écrit, toutes les indications nécessaires (délais, surcoût...) à ces travaux supplémentaires et se les faire confirmer, par écrit, par le maître d'ouvrage.
Le maître d'ouvrage mettra à la disposition de l'entrepreneur toutes les levées de terrain, bornage, et repères connus de lui, afin de servir de base de référence pour le repérage par l'entrepreneur de son installation.
Les levées de terrain et repérages supplémentaires restent à la charge de l'entrepreneur.
L'entrepreneur sera tenu de procéder lui-même et sous sa responsabilité, en présence du maître d'ouvrage, au piquetage des ouvrages.
Il devra avoir préalablement reconnu les terrains, vérifié l'exactitude (si ceux-ci figurent dans le dossier) des renseignements relatifs à la nature du sol et sous-sol, renseignements qui sont réputés purement indicatifs.
L'entrepreneur devra, pour toutes ces opérations et pour toutes les opérations de vérification que désirerait effectuer le maître d'ouvrage, tenir à la disposition de celle-ci le matériel topographique et le personnel qualifié nécessaires.
Les frais engagés par l'entrepreneur à cette occasion sont censés être implicitement compris dans les prix unitaires de règlement de ces travaux.
Protections contre les risques de détériorations / salissures / brûlures / vols / conditions climatiques ( vent, pluie, gel etc.) (liste non exhaustive).
Les installations de chantier, le matériel et les matériaux en excédent, ainsi que tous autres gravois et décombres devront être enlevés en fin de chantier, et les emplacements mis à disposition remis en état.
L'ensemble des emplacements remis en état et le chantier totalement nettoyé devront être remis au maître de l'ouvrage, au plus tard le jour de la réception des travaux.
Il est d'autre part stipulé que, tant que les installations de chantier établies sur l'emplacement mis à la disposition des entrepreneurs ne seront pas démontées et les lieux remis en état, les entrepreneurs resteront seuls responsables de tous les dommages causés aux tiers sur le chantier.
Il sera procédé à la réception des travaux par le maître d'œuvre assisté du représentant légal du maître d'ouvrage en présence des entrepreneurs. Mention en sera faite au procès verbal de garantie.
A l'achèvement de l'ensemble des travaux, il sera procédé à la réception par lot, par groupe de lots et pour l'ensemble des lots suivant le cas.
Lorsqu'il aura été constaté des inexactitudes, imperfections, malfaçons, absence de remise en état des lieux, etc…, elles seront résumées dans le procès verbal dressé sur les lieux par le maître d'œuvre et signé par l'entrepreneur.
Lorsque ces travaux ne donneront pas entière satisfaction, il pourra être prononcé une réception de réserve.
Après exécution des travaux demandés à l'entrepreneur, il y aura lieu d'en faire le constat par procès verbal.
Si l'entrepreneur n'exécute pas les travaux demandés dans les délais prescrits, ils pourront être exécutés aux frais et risques de ce dernier.
La réception des travaux qui devra être prononcée dans les 45 jours à compter de la date du procès verbal, fixera le jour retenu pour l'achèvement des travaux ;
Le délai de garantie court à compter de la date d'achèvement des travaux fixée dans la réception des travaux.
Les entrepreneurs devront se conformer aux règlements de police de la voirie. Ils seront individuellement et exclusivement responsables de toutes contraventions auxquelles ils pourront s'exposer.
Ils seront responsables des accidents corporels ou matériels qu'ils pourront subir du fait des travaux ou subir de leur fait par les tiers et ne pourront en aucun cas exercer un recours à l'encontre du maître d'ouvrage. Ils prévoiront toutes clôtures provisoires et signalisations interdisant l'entrée du chantier au public.
Le maître d'ouvrage, dégage entièrement la responsabilité en cas d'accident du fait de la présence éventuelle d'engins de guerre sur les terrains qui seront, à quel titre que ce soit, utilisés par les entrepreneurs.
Pendant la durée des travaux, les entrepreneurs devront garantir à leurs frais, les matériaux et ouvrages des détournements, dégradations et destruction de toute nature.
Ils seront individuellement responsables de l'entretien de leurs ouvrages jusqu'à réception des travaux, quitte à faire leur affaire personnelle des disparitions, dégâts ou autres les concernant.
Les entrepreneurs seront tenus d'avoir une assurance individuelle de « Responsabilité Civile Chef d'Entreprise » pour couvrir les conséquences pécuniaires des dommages de toute nature causés aux tiers, du fait de leur activité dans le chantier.
La responsabilité décennale de l'entrepreneur devra être assurée automatiquement du fait de son adhésion à la Fédération Nationale des Entrepreneurs.
L'entrepreneur devra fournir la preuve qu'il bénéficie des deux assurances exigées ci-dessus, en produisant un certificat émanant de la compagnie d'assurance ou de la fédération.
Ce certificat devra être fourni au maître d'œuvre dès la signature des marchés définitifs et en tous cas avant :
Perception du premier acompte.
Règlement du solde.
L'entrepreneur est réputé :
Avoir pris connaissance de tous les plans et documents utiles à la réalisation des travaux ainsi que des lieux et des terrains d'implantation des ouvrages et des éléments généraux et locaux en relation avec l'exécution des travaux.
Avoir procédé à une visite détaillée du terrain et avoir pris parfaitement connaissance de toutes les conditions physiques et de toutes les sujétions relatives aux lieux des travaux, aux accès, aux abords, à la topographie et à la nature des terrains, à l'exécution des travaux à pied d'œuvre ainsi qu'à l'organisation et au fonctionnement du chantier.
Par dérogation à l'article 47.3 du .C.C.A.G. Travaux, les dispositions qui suivent sont applicables en cas de redressement judiciaire ou de liquidation judiciaire.
Le jugement instituant le redressement ou la liquidation judiciaire est notifié immédiatement au maître d'ouvrage par le titulaire du marché. Il en va de même de tout jugement ou décision susceptible d'avoir un effet sur l'exécution du marché.
En cas de redressement judiciaire, le maître d'ouvrage adresse à l'administrateur une mise en demeure lui demandant s'il entend exiger l'exécution du marché.
Cette mise ne demeure est adressée au titulaire dans le cas d'une procédure simplifiée sans administrateur si, en application de l'article 141 de la loi du 25 janvier 1985, le juge commissaire a expressément autoriser celui-ci à exercer la faculté ouverte à l'article 3 de la loi. En cas de réponse négative, ou en l'absence de réponse dans le délai d'un mois à compter de l'envoi de la mise en demeure, la résiliation du marché est prononcée.
Ce délai d'un mois peut être prolongé ou raccourci si, avant l'expiration du dit délai, le juge commissaire a accordé à l'administrateur une prolongation ou lui a imparti un délai plus court.
La résiliation prend effet à la date de la décision de l'administrateur ou du titulaire de renoncer à poursuivre l'exécution du marché, ou à l'expiration du délai d'un mois ci-dessus. Elle n'ouvre droit, pour le titulaire, à aucune indemnité.
En cas de liquidation judiciaire, la résiliation du marché est prononcée sauf si le jugement autorise expressément le maintien de l'activité de l'entreprise.
Dans cette hypothèse, la personne publique pourra accepter la continuation du marché pendant la période visée à la décision de justice ou résilier le marché sans indemnité pour le titulaire.
Généralités
Les fournitures, matériaux et matériels et les éléments préfabriqués entrant dans les ouvrages et prestations du présent marché, devront répondre aux spécifications suivantes :
Pour tous les matériaux, matériels et fournitures et éléments préfabriqués faisant l'objet de normes NF, l'entrepreneur ne pourra mettre en œuvre que ceux répondant à ces normes.
Pour tous les matériaux, matériels et fournitures et éléments préfabriqués traités dans le ou les CCTG et dans les DTU concernés par les travaux, il ne pourra être mis en œuvre que ceux répondant aux conditions et prescriptions de ces documents.
En ce qui concerne plus particulièrement les matériaux, matériels, fournitures et éléments préfabriqués essentiels, ne pourront être mis en œuvre que ceux répondant aux normes ou Avis Techniques
Tous les matériaux entrant dans la composition des fournitures et des ouvrages et leur provenance doivent être agréés par le maître d'ouvrage. L'acceptation d'un matériel par le maître d'ouvrage ne peut pas avoir pour effet de dégager l'entrepreneur de ses responsabilités.
Toute livraison anticipée sera faite aux risques et périls de l'entrepreneur.
Le maître d'ouvrage se réserve le droit d'inspecter les matériaux, à tout moment. Sauf indications contraires, tous matériaux, produits et composants de construction devant être mis en œuvre, seront toujours neufs et de première qualité et conformes au cahier des charges ou fourniture d'un produit équivalent avec accord du maître d' œuvre. Aucun défaut ne sera accepté
Les matériaux quels qu'ils soient ne devront en aucun cas présenter des défauts susceptibles d'altérer l'aspect des ouvrages ou de compromettre l'usage de la construction.
Dans le cadre des prescriptions du CCTP, le maître d'œuvre aura toujours la possibilité de désigner la nature et la provenance des matériaux qu'il désire voir employer et d'accepter ou de refuser ceux qui lui sont proposés.
Pour tous les matériaux et articles fabriqués soumis à "Avis Technique", l'entrepreneur ne pourra mettre en œuvre que des matériaux et produits fabriqués titulaires d'un "Avis Technique". Pour les produits ayant fait l'objet d'une "certification" par un organisme certificateur, l'entrepreneur ne pourra mettre en œuvre que des produits titulaires d'un "certificat de qualification".
Les matériels, les matériaux et les produits fabriqués doivent être conformes aux normes AFNOR, NF,…
L'entrepreneur est réputé connaître ces normes. Il appartient à l'entrepreneur, qui en tout état de cause reste responsable auprès du maître d'ouvrage, de s'assurer auprès des fabricants que leurs fournitures satisfont aux prescriptions des CCTG et des normes existantes. Cette conformité concerne la qualité, les caractéristiques, les types, les dimensions, les poids, les modalités d'essais, de marquage, de contrôle et de réception.
Les matériaux seront soigneusement stockés sur le site, en stricte conformité avec les recommandations des fabricants et seront assurés contre le vol et l'incendie, ces matériaux étant sous la seule responsabilité de l'entrepreneur.
Sont refusés et refaits, les travaux présentant des surfaces salies, prématurément vieillies,... ou des défauts d'horizontalité, de verticalité, d'alignement.
Produits de marque
Pour certains matériels et produits, le choix du concepteur ne peut être défini d'une manière précise sans faire référence à un matériel ou produit d'un modèle d'une marque. Les marques et modèles indiqués ci-après dans le CCTP avec la mention "ou équivalent" ne sont donc donnés qu'à titre de référence et à titre strictement indicatif, étant entendu que le maître a la faculté d'imposer les marques prescrites si celles de remplacement proposées ne correspondent pas exactement en qualité comme en aspect.
Les entrepreneurs auront toujours toute latitude pour proposer des matériels et produits d'autres marques et modèles, sous réserve qu'ils soient au moins équivalents en qualité, dimensions, formes, aspects,...
Responsabilité de l'entrepreneur
L'entrepreneur étant responsable de la fourniture des matériaux et de leur mise en œuvre, il conserve le droit de refuser l'emploi de matériaux ou composants préconisés par le maître d'ouvrage, s'il juge ne pas pouvoir en prendre la responsabilité.
Il devra alors justifier son refus par écrit avec toutes justifications à l'appui.
Agréments - Essais - Analyses
Pour tous les matériaux et produits fabriqués soumis à un "Avis Technique" du CSTB, l'entrepreneur ne pourra mettre en œuvre que des matériaux titulaires de cet " Avis Technique " et il devra toujours être en mesure, à la demande du maître d'œuvre, d'en apporter la preuve.
L'entrepreneur sera également tenu de produire à toute demande du maître d'ouvrage, les procès-verbaux d'essais ou d'analyses de matériaux établis par des organismes qualifiés.
À défaut de production de ces procès-verbaux, le maître d'ouvrage pourra prescrire des essais ou analyses sur prélèvements, qui seront entièrement à la charge de l'entrepreneur.
Conditions générales de livraison des fournitures et matériaux
Avant tout début des travaux, l'entrepreneur titulaire du marché doit indiquer au Maître d'ouvrage la provenance des matériaux employés, le nom et la référence des fournisseurs.
L'adjudicataire devra effectuer les livraisons de fournitures et matériaux prévues au Cahier des Clauses Techniques Particulières en se conformant aux instructions qui seront données en cours d'exécution par le maître d'ouvrage, pour surveiller la livraison des fournitures.
L'entrepreneur titulaire du marché devra soumettre au maître d'ouvrage, pour agrément, les noms de ses divers fournisseurs et remettre également copie des commandes qu'il aura passées à des fournisseurs en vue de l'exécution de son marché. Il devra enfin se munir de tout le matériel nécessaire pour livrer complètement, dans les délais qui lui seront fixés, les fournitures dont il aura à assumer la livraison.
Il sera tenu de communiquer à tout moment au maître d'ouvrage des lettres de voitures, connaissance de factures ou autres documents permettant d'authentifier les provenances des fournitures.
En cours de travaux, l'entrepreneur doit fournir la preuve de la provenance de ses matériaux à toute demande du Maître d'ouvrage.
Protection contre la corrosion
Tous les éléments, articles et fournitures à mettre en œuvre devront impérativement être munis d'une protection garantie contre la corrosion.
Le type et la nature de ces protections contre la corrosion devront être adaptés à la composition.
Il sera interdit de brûler les bois ou autres matériaux combustibles en provenance des démolitions sur le chantier.
Tous les déblais en excédent après exécution des terrassements, seront évacués hors du chantier par l'entrepreneur.
Les gravois de démolition et les déblais ainsi que tous les autres matériaux et matériels déposés seront à évacuer au fur et à mesure à la décharge publique, à toute distance et par tous moyens.
Les prix du marché comprendront implicitement tous les transports par tous moyens y compris manuels à l'intérieur du chantier et, le cas échéant, entre les lieux d'emprunt et de dépôt, nécessaires à la réalisation des travaux.
L'entrepreneur aura également à réaliser et à entretenir les voiries provisoires ou pistes de circulation utilisées par l'entreprise.
Les entrepreneurs sont contractuellement réputés avoir, avant remise de leur offre, procédé sur le site à la reconnaissance des existants.
Cette reconnaissance à effectuer portera notamment sur les points suivants sans que cette énumération soit limitative :
l'état des existants et leurs principes constructifs,
la nature des matériaux constituant les existants,
les possibilités de démolition en fonction du site,
les difficultés particulières qui pourraient survenir lors des travaux, et en général sur tous les points pouvant avoir une influence sur l'exécution des travaux et sur leur coût.
Les offres des entreprises seront donc contractuellement réputées tenir compte de toutes les constatations faites lors de cette reconnaissance, et comprendre explicitement ou implicitement tous les travaux accessoires et autres nécessaires.
Les entrepreneurs pourront, lors de cette reconnaissance, effectuer tous les essais sur existants qu'ils jugeront utiles.
Le chantier ne sera ouvert qu'après autorisation régulière délivrée par les services compétents.
L'entrepreneur devra respecter les heures d'ouverture du chantier qui lui auront été notifiées.
Aucun trouble ne devra, en dehors de ces heures, être apporté à la tranquillité du voisinage.
En tout état de cause, l'entrepreneur sera tenu de respecter les modifications des horaires de travail qui pourraient éventuellement lui être imposées en cours de chantier.
Les méthodes de démolition sont laissées à l'appréciation de l'entrepreneur qui adoptera les dispositions qui lui conviennent.
Il est toutefois formellement spécifié que les méthodes de démolition devront rester dans le cadre de la réglementation et des instructions qui lui seront données par les services compétents.
L'entrepreneur devra lors de ce choix, tenir compte qu'il devra assurer dans tous les cas :
la sécurité du personnel et la sécurité du public,
la conservation sans dommages des propriétés voisines bâties ou non bâties,
la préservation des ouvrages à conserver
Les cotes et niveaux de terrassements finis à obtenir sont définis seront à établir par l'entrepreneur et à soumettre au visa du maître d'ouvrage.
Le piquetage général incombera à l'entreprise et tous les frais et fournitures nécessaires seront à sa charge.
L'entrepreneur aura implicitement à sa charge toutes les prestations complémentaires nécessaires telles que compléments de piquetage, piquetages spéciaux, etc. comme stipulé à l'article 12 du fascicule 2 du CCTG.
L'entrepreneur sera tenu de veiller à la bonne conservation des piquets et de les rétablir ou de les remplacer en cas de besoin, pendant toute la durée nécessaire.
Lors de l'exécution des travaux, l'entrepreneur sera tenu de compléter le piquetage général par autant de piquets qu'il sera nécessaire.
Ces piquets complémentaires devront pouvoir être distingués de ceux du piquetage d'origine.
L'entrepreneur sera seul responsable des piquetages complémentaires.
Toutes les fouilles à réaliser par l'entreprise s'entendent quelles que soient les sujétions et les difficultés d'extraction rencontrées en fonction de la nature des terrains.
Les travaux de terrassements comprendront également :
la démolition par tous moyens d'anciens ouvrages en maçonnerie ou bétons de toute nature éventuellement rencontrés;
l'arrachage et l'enlèvement de toutes anciennes souches pouvant être rencontrées;
la démolition ou l'arrachage et l'enlèvement d'anciennes canalisations ou câbles hors service éventuellement rencontrés.
Les terrassements en déblais comprennent implicitement les prestations énumérées à l'article 17.10 du fascicule 2 du CCTG.
Les fouilles seront réalisées par moyens mécaniques, avec finition à la main si des conditions particulières l'exigent.
Les engins à utiliser seront adaptés à la nature des terrains et aux conditions de chantier.
L'exécution comprendra implicitement toutes sujétions nécessaires, utilisation d'engins spéciaux,...
Les prestations du présent lot comprendront tous mouvements de terre et manutentions, notamment tous jets de pelle, montages, roulages, façon de banquettes,... nécessaires dans le cadre de l'exécution des travaux et suivant le cas :
pour mise en dépôt des terres devant être réutilisées;
pour chargement des terres devant être enlevées.
L'exécution comprendra, le cas échéant, la façon de rampes d'accès nécessaire et leur enlèvement après coup.
Il ne doit pas être créé de surprofondeur.
Dans le cas où une surprofondeur aurait été accidentellement réalisée, le remblaiement nécessaire est exécutée à la charge de l'entrepreneur conformément aux modalités prescrites par le maître d'ouvrage.
Toutes les maçonneries rencontrées en fouilles seront démolies et arasées à –0,80 m du niveau des plateformes.
Si les purges se révèlent nécessaires, elles seront exécutées jusqu'à la profondeur fixée par Ordre de Service du maître d'ouvrage et remblayées avec les matériaux de déblais si un compactage satisfaisant peut être obtenu, ou avec des matériaux d'apport dans le cas contraire.
Les produits des purges seront évacués aux décharges publiques s'ils sont impropres à la réutilisation.
Au sujet des articles 15.1 et 17.8 du fascicule 2 du CCTG, il est précisé que dans le cas où il sera nécessaire d'exécuter des redans, les dimensions et le nombre seront à définir par l'entrepreneur en fonction des conditions rencontrées.
Les types d'engins de compactage à utiliser seront à proposer par l'entrepreneur à l'approbation du maître d'ouvrage.
Dans le cas où des zones localisées de portance insuffisante seraient rencontrées, l'entrepreneur devra purger ces zones et les remplacer par un matériau de meilleure qualité.
Ces travaux de purge comprendront toutes les prestations nécessaires telles que définies à l'article 17.22 du fascicule 2 du CCTG.
Ces travaux de purge sont implicitement compris dans les prix du marché.
En ce qui concerne des zones de sols compressibles non reconnues au préalable, les dispositions à prendre pour remédier au risque de compromettre la stabilité de l'ouvrage sont implicitement comprises dans les prix du marché.
Au sujet de l'article 15.3 du fascicule 2 du CCTG, il est précisé que les contrôles seront assurés par l'entrepreneur, les valeurs des densités à obtenir étant précisées ci-après au présent CCTP.
Il appartiendra à l'entrepreneur de définir la nature et la fréquence des essais, ainsi que la méthode de contrôle, et de les proposer au maître d'œuvre; ce dernier pourra, s'il le juge nécessaire, demander à l'entrepreneur de modifier les modalités proposées
En ce qui concerne les essais complémentaires que le maître d'œuvre pourra à tout moment exiger de l'entrepreneur, les frais entraînés seront :
à la charge de l'entrepreneur si les résultats des essais lui sont défavorables ;
à la charge du maître d'ouvrage, dans le cas contraire.
Pour les ouvrages de terrassement devant servir de support à une voirie, parking ou autre, la partie supérieure des remblais ou la plate-forme de terrassements devra être soigneusement réglée aux niveaux voulus.
Pour les espaces engazonnés, les pentes seront à déterminer par l'entrepreneur en fonction :
des points de réception des eaux
de la disposition des surfaces à traiter
avec pente minimale de 1 %
Les terrassements pour l'ouverture de fosses aux emplacements de plantations sont effectués avant l'apport de terre végétale.
Le fond des fosses sera décompacté et les parois ne devront pas être lissées.
Les déblais provenant de l'ouverture des fosses seront évacués en décharge.
L'achèvement des fosses fait l'objet d'une constatation.
Le remblaiement des fosses de plantation intervient dans un délai permettant d'éviter les risques et désordres. Ce délai doit être le plus bref possible.
A la fin des travaux de plantation, l'établissement d'un état des lieux est indispensable.
Le document indiquera toutes les défectuosités survenues au cours des travaux.
Il sera établi, contradictoirement par le maître d'ouvrage et l'entrepreneur, après comparaison avec le premier constat effectué au début de la période des travaux.
Le maître d'ouvrage indiquera les conditions dans lesquelles devront être effectuées les réparations nécessaires à la remise en état des défectuosités constatées.
L'exécution des travaux de réfection s'inscrit dans le cadre du marché et ne donne pas lieu à nouveau paiement.
L'entrepreneur titulaire du marché prendra possession du terrain en l'état et effectuera les opérations préliminaires à son intervention.
L'entreprise effectuera une visite minutieuse avant le dégagement d'emprise pour reconnaissance de réseaux de toutes natures qui seront maintenus en service. Il est précisé que les plans qui lui sont remis constituent la base des réalisations, objets du marché. Ces plans ne sauraient être utilisés comme si aucun réseau n'existait sur le terrain ou dans ses abords.
L'entreprise aura à sa charge :
la reconnaissance des lieux dans leur état actuel ;
la reconnaissance des prestations à sa charge ;
les installations de chantier comprenant notamment :
toutes les installations nécessaires pour permettre de réaliser les travaux dans les règles de l'art et dans le strict respect de la réglementation en vigueur.
les installations nécessaires pour respecter la législation en matière de sécurité et de protection de la santé
l'aménagement d'une aire de stockage et de dépôt de matériaux
toute la signalisation nécessaire à la protection vis-à-vis de la circulation
toutes les installations et signalisations nécessaires pour garantir la sécurité des tiers
l'installation de barrières de chantier (grilles de type Heras).
toutes les précautions prises aux frais et charge de l'entreprise pour éviter toutes dégradations sur les propriétés voisines et sur les voies de circulations publiques attenantes
les dispositifs provisoires éventuels d'assainissement et toutes autres installations de chantier qui s'avèreront nécessaires
l'apport, la mise en place, la maintenance, le démontage et le repli des installations et de l'aire de stockage et de dépôt de matériaux ;
la tenue en état de propreté du chantier et de son environnement, y compris mise en décharge et droit de décharge ;
la livraison du chantier pour la réception, soit :
la remise en état d'origine des emplacements utilisés ainsi que de l'environnement du chantier le cas échéant.
le démontage et le repliage de toutes les installations de chantier. Les grilles de chantier implantées en bordure de la chaussée d'Eclusier devront être laissées en place jusqu'au 15 juillet de façon à protéger la reprise des zones ensemencées.
la remise en état de tous les emplacements mis à la disposition de l'entreprise.
la remise en leur état d'origine de tous les ouvrages existants que l'entrepreneur aurait déposé ou modifié à titre provisoire.
le nettoyage et curage des canalisations d'assainissement et essais nécessaires.
le nettoyage final de la réception.
Il est rappelé que le site est un site naturel donc fragile. En conséquence, les engins utilisés devront être adaptés à ce type de lieu par leur envergure, leur maniabilité et leur technologie.
L'intervention se fera suivant le calendrier d'exécution fixé par le maître d'ouvrage.
Le travail de nivellement devra être réalisé en coordination avec le maître d'ouvrage.
Panneau de chantier réglementaire comportant la désignation de l'opération, du maître d'ouvrage et des entreprises concernées. Y compris composition et réalisation selon les indications de la Mairie de LONG
Ce poste comprend :
le nettoyage soigneux des sols de tout éléments exogènes (maçonnerie, pierre, ciment, métal, verre,…)
le décapage des zones couvertes de gravillons ou ballast sur toute la hauteur nécessaire (minimum 15 cm)
. Le décapage sur une épaisseur de 20 cm de toutes les zones de voirie de circulation, ainsi que toutes les aires de stationnement
Y compris le transport, et le droit de décharge de tous les produits provenant du nettoyage, et des démolitions
Y compris toutes les sujétions de signalisation et nettoyage des voiries
Y compris toutes les sujétions de protection des existants.
A l'exception des zones d'espèces protégées ou patrimoniales, délimitées sur le site par le maître d'ouvrage et clairement indiquées comme telles à l'entrepreneur, lors de la visite contradictoire du site qui aura lieu avant l'ouverture des travaux.
Ce poste comprend la création de 6 ou 8 aires de stationnement attenantes stabilisées à l'aide de dalles à engazonner (cf dessin)
Ce poste comprend l'installation et la préparation de chantier,
la démolition de chaussée y compris structure et évacuation en décharge publique
le terrassement pour encaissement de chaussée
. Le nivellement et le compactage de fond de forme.
La fourniture, transport et mise en oeuvre de GNT O,40 sur une épaisseur de 35 cm,
y compris nivellement et compactage
. La fourniture et compactage d'une couche de finition en stabilisé. Mélange composé d'un liant à réaction hyperpouzzolaniques lentes et évolutives et d'un adjuvant à effet minéralisant, associé à sable naturel de carrière blond. L'ensemble est choisi pour son faible reflux sableux, sa faible densité au gel et sa bonne résistance à l'érosion hydraulique
. Dimension des places de stationnement : 3 m x 8 m
L'aire technique pour camping-cars offrira cinq types de services :
. la vidange des "eaux usées grises" (eaux savonneuses de toilette et de vaisselle)
. la vidange des "eaux noires" (cassette WC avec additif assurant la décomposition et limitant les odeurs)
. le ravitaillement en eau potable
. le dépôt des ordures ménagères
L'aire de vidange sera composée d'une dalle en béton lissé, pentée à 5% (cf schéma) collectant les eaux vers une grille d'écoulement central. Ce poste comprend :
. le terrassement et le nivellement d'une aire de dimension finale 7,5 m x 3 m
. La mise en place d'un drain transversal, type euro drain avec système de rinçage intégré.
. le raccordement au réseau d'assainissement du camping (exécution de tranchée l= 40 cm), y compris sable de pose, grillage avertisseur , tuyaux pvc CR16 (diamètre 125). le compactage d'une couche de propreté en GNT 0/40
. le ferraillage et coulage d'une dalle en béton de 4 m x 2,50 m x 0,40 m,
. le coulage en partie supérieure d'une chape ciment parfaitement lisse avec forme de pente à 5%
. La fourniture et mise en place d'un regard siphoné (diamètre 315), située en bout de dalle
. Le decapage des sols en place de part et d'autre de l'aire de vidange
. La fourniture, mise en place et compactage d'une couche de propreté en GNT 0/40
y compris mise en place d'un gicleur raccordé à un point d'eau permettant le nettoyage des éclaboussures sur la dalle
Y compris toute suggestion
Le vidoir, ou aire de vidange des eaux noires permet aux camping car qui en sont équipés de transporter les matières dans un réservoir mobile ou cassette jusqu'à un point de vidange, un vidoir, spécialement prévu pour cet usage. Les réservoirs mobiles actuels comportent un bec verseur qui peut être introduit directement dans un tube de réception.
Ce poste comprends la mise en place d'une évacuation ,à partir de la borne équipée de vidoirs , des eaux noires vers les équipements d'assainissements existants , cette mise en place devra être réalisée conjointement avec la réalisation de la dalle .
ce poste comprend :
. La mise en place d'une borne type eurorelais " Mini" ( fourni par le maitre d'ouvrage )
comportant 1 robinet d'eau potable, 1 robinet de rincage wc, kit anti gel
ou d'un robinet fileté avec commande par poussoir pour éviter tout gaspillage
. La mise en place d'un compteur d'eau
Ce poste comprend l'ouverture d'une tranchée destinée au raccordement à l'éclairage public (profondeur: 0,80 m, largeur 0, 50)
. La fourniture et pose de cable de terre
. La fourniture et pose de 2 gaines annelées rouges D=50 ( 4 boucles en attente)
. la fourniture et mise en oeuvre de sable de pose et de grillage avertisseur
. Le remblaiement
. Le raccordement au réseau d'assainissement
ce poste comprend la pose d'une borne de type Euro parc 4V et de bornes de guidage ( fourni par le maître d'ouvrage) avec éclairage et équipements ,y compris réalisation des massifs de fondation
Ce poste comprend également l'ouverture d'une tranchée destinée au raccordement à l'éclairage public (profondeur: 0,80 m, largeur 0, 50)
. La fourniture et pose de cable de terre
. La fourniture et pose de 2 gaines annelées rouges D=50 ( 4 boucles en attente)
. la fourniture et mise en oeuvre de sable de pose et de grillage avertisseur
. Le remblaiement
Y compris toute sujétion.
Ce poste comprend la fourniture de 2 poubelles 50 l avec couvercle
Ce poste comprend la fourniture et la mise en place de panneaux de guidage en tôle émaillée à disposer selon indication de la mairie
5 Panneaux CE24 "aires de services" homologués par la sécurité routière ; format 50 x 50 , y compris mats supports de 3 m
2 panneaux Ce1A " Parking"
2 panneaux directionnels (" 100m, 500m...)
V-7 STABILISATION DE DEUX AIRES DE PARKING EXISTANTES
Ce poste comprends la mise en place de dalles à engazonner et une remise à niveau ( cf schéma )
V-8 FOURNITURES
Ce poste comprends la fourniture des équipements nécéssaires au fonctionnement de l'aire de service et aux aires de stationnement
Borne multi services ( eaux grises , eaux noires,monnayeur à jetons, eau )
Bornes de distribution d'électricité , individuelles ou collective )
Luminaires de guidage
Le régalage des terres sera exécuté conformément à la planification proposée par le maître d'ouvrage.
On recherchera une pente régulière des terres en veillant à ne pas enterrer les collets des arbres existants.
Les fonds de forme, ainsi que tous les remblais, seront dressés et compactés au fur et à mesure du terrassement afin d'éviter l'orniérage par le mouvement des engins.
L'entrepreneur justifiera au maître d'ouvrage cette provenance par une copie des factures et du certificat d'origine du Service Officiel de Contrôle et Certification des Semences et des Plants (SOC) qui indiqueront : Le nom du fournisseur / l'origine de la fourniture / les espèces, variétés et cultivars / le degré de pureté et la faculté germinative.
Les mélanges de graines seront réceptionnés par le maître d'ouvrage sur le chantier.
Qualités auxquelles les graines et la composition des mélanges doivent satisfaire : La graine devra être bien mûre, être entière, c'est à dire n'avoir pas été endommagée par la récolte et le battage et avoir une pureté et une faculté germinative conforme aux spécifications retenue dans le règlement technique de la production du contrôle et de la certification des semences de plantes fourragères homologuées par les arrêtés du Ministère de l'Agriculture.
Ce poste comprend :
Le décompactage de la couche de terre végétale et des bris des mottes.
l'élimination des débris organiques.
le nivellement fin.
La fourniture des matériaux nécessaires à l'exécution des ensemencements, graines, engrais, adjuvants,...
les ensemencements proprement dits,
la fumure de post-levée,
les travaux éventuels de complément, nécessaires à l'application de la garantie,
Y compris deux tontes.
Y compris l'arrosage si nécessaire.
Les travaux d'engazonnement doivent être réalisés en une seule fois.
Le terrain devra être affiné et nivelé selon les indications du maître d'ouvrage durant les travaux préliminaires. Le semis, s'il est manuel, sera effectué durant une journée sans vent, sur sol ressuyé. Le semis comportera les opérations suivantes :
roulage général,
griffage du sol au râteau dans les deux sens sans descendre en profondeur,
ensemencement : le semis des graines étant fait aussi uniformément que possible à raison de 350 kg à l'hectare, dans le mélange et aux doses prescrites par le CCTP.
ratissage léger sur un demi-centimètre d'épaisseur dans les deux sens,
roulage léger au rouleau de 60 à 80 kg,
façon de filets et contrefilets
Fétuque rouge (Festuca rubra) 15% Fétuque élevée ( Festuca arundinacea) 25%
Agrostide (Agrostis stolonifera) 2% Pâturin des prés ( Poa pratensis) 10%
Pâturin commun (Poa trivialis) 3% Vulpin des prés (Alopecurus pratensis) 10%
Baldingère ou roseau à canards ( Phalaris arundinacea) 10%
Achillée millefeuille (Achillea millefolium) 5% Ray grass (Lollium perenne) 15%
Trèfle blanc (Trifolium repens) 5%
Les graminées seront semées à raison de 12g/m 2 avec un paillis cellulosique, un fixateur algale et de l'engrais complet NPK.
Y compris le griffage pour enfouissement des graines, le roulage.
Y compris les petites surfaces.
Ce poste comprend :
nettoyage du gazon par destruction des plantes adventices, par un procédé préalablement agréé par le maître d'ouvrage,
réensemencement et réparation des parties mal venues, notamment en cas de pelade
première tonte avant réception
une garantie de reprise des végétaux
Le maître d'ouvrage se réserve le droit d'arrêter les travaux à tout moment quand il juge que l'entrepreneur ne respecte pas les conditions du marché ou que les conditions d'application (climatiques ou autres) ne sont pas favorables, sans que l'entrepreneur puisse prétendre à une indemnité quelconque.
La réception provisoire sera prononcée pour les engazonnements, à la fin du mois de juin 2010.
Cette réception fixera la date de départ du délai de garantie, ainsi que les obligations de l'entrepreneur.
Le constat aura lieu après la deuxième tonte. Le réengazonnement aura lieu dans le mois qui suivra le constat. Ce constat sera établi contradictoirement entre l'entreprise et le Maître d'ouvrage et fera l'objet des surfaces à réengazonner.
Ce poste comprend la fourniture et la plantation de boutures de saules d'essences différentes :
Saule pourpre (salix purpurea) 15% Saule à trois étamines (salix triandra) 15%
Saule cendré (salix cinerea) 35% Saule des vanniers (salix viminalis) 35%
Densité : 15 boutures de saule épointées par mètre linéaire . Hauteur 80/100 cm, diamètre 5 à 7 cm .
Y compris récolte, fabrication des boutures, mise en jauge, transport sur le chantier et mise en place des boutures. Le stockage des boutures de branche et ramilles de saule ne dépassera pas 48 h. Les végétaux seront sains et ne devront pas présenter d'éraflure ou de trace de mauvaise coupe.
Y compris le décompactage de la couche de terre végétale et des bris des mottes, l'élimination des débris organiques et le régalage fin des surfaces plantées sur une épaisseur moyenne de 0,20 m
Y compris la mise en place et la fixation d'un film de paillage en PE biodégradable ou un tapis de coco et plantation des boutures
Y compris l'arrosage jusqu'au constat de reprise
Localisation : Cf. plan de plantations . Plantation à réaliser sur indication du maître d'ouvrage.
Haute tige, fléché, 3 fois transplanté, motte de 80 cm mini
Au moins 5 branches charpentières équilibrées entre elles
Y compris la taille et l'habillage, la façon de cuvette, le régalage de la surface plantée, le plombage à l'eau, l'entretien jusqu'au constat de reprise.
Y compris la fourniture et la mise en place de terre végétale
Y compris le tuteurage 3 points, la bande en toile de jute sur le tronc
Mise en œuvre: selon indication du maître d'ouvrage
Plantation avant le 30 mars 2010
Mise en œuvre: selon indication du maître d'ouvrage
Plantation avant le 30 mars 2011
Le prestataire s'engagera auprès du maître d'ouvrage d'une garantie de reprise de tous les végétaux ( gazons ,saules ,charmille et graminées )